1303-A N Druid Hills Road
Brookhaven, Georgia 30319

New / MLS #7712450 / Vacant Land / Brookhaven
Listing information updated 2/1/2026 at 7:22am
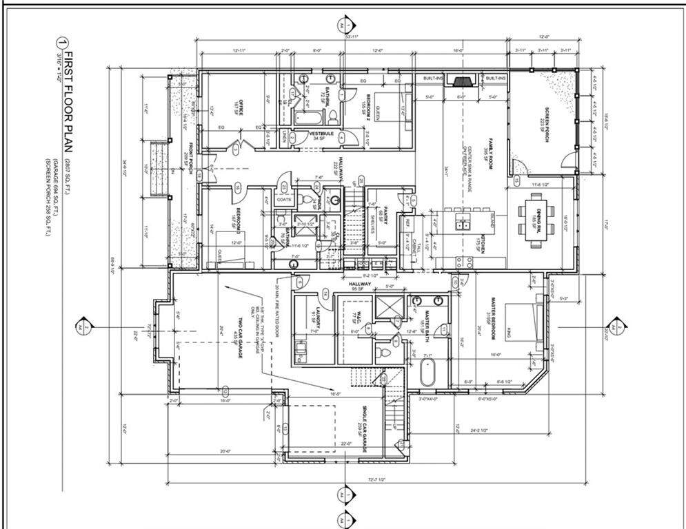
This 0.3-acre lot is ideally located in the heart of Brookhaven, within walking distance of Brookhaven City Hall and the Brookhaven Metro Station. Currently, the property features a 2007 custom-built craftsman home, presenting a fantastic opportunity for modernization. The seller suggests a partial rebuild of the first level to create a modern open floor plan while preserving the charm of the existing second and third levels. The proposed first-level redesign encompasses 3,366 square feet, including a three-car garage, a deck with a fireplace, and thoughtfully planned living spaces. Renderings of the proposed layout are included for your reference. The existing second and third levels contribute approximately 2,700 square feet, bringing the total living space to over 6,000 square feet. This flexible renovation approach allows you to achieve a contemporary home at a fraction of the cost of building new construction of similar size. The expansive, flat backyard provides the perfect canvas for a pool, garden, or outdoor entertainment area, making this property even more desirable. While the updates require additional investment, the return on investment (ROI) is well-supported by the increased functionality, aesthetics, and value the upgrades deliver. For more details about the current home, please see listing #7502568. If you'd like to work with our builder-the same team behind the home in the pictures-we'd be happy to provide a quote for the proposed first-level modernization. However, you're under no obligation to use our builder and are welcome to work with your own.

Listing Office: Realco Brokers, Inc.

Listing Office Phone: 404.786.0988

Disclaimer: Listings identified with the FMLS IDX logo come from FMLS and are held by brokerage firms other than the owner of this website. The listing brokerage is identified in any listing details. Information is deemed reliable but is not guaranteed. If you believe any FMLS listing contains material that infringes your copyrighted work please click here to review our DMCA policy and learn how to submit a takedown request. © 2026 First Multiple Listing Service, Inc.

Map of 1303-A N Druid Hills Road, Brookhaven, GA 30319

Not quite what you are looking for?

Similar listings for sale near 1303-A N Druid Hills Road, Brookhaven, GA 30319


Like the area?

More homes for sale near 1303-A N Druid Hills Road, Brookhaven, GA 30319


1303-A N Druid Hills Road, Brookhaven, GA 30319 is a vacant land currently listed at $995,000. 1303-A N Druid Hills Road features 4 Beds, 3 Baths, 1 Half Bath. This vacant land has been listed on Ansley Real Estate Christie's International since February 1st, 2026 and was built in 2007. Nearby schools include Ashford Park and Chamblee.